Saranno anche riutilizzate le “storiche” lastre di pietra che per tanto tempo hanno caratterizzato corso Matteotti
Nella commissione consigliere di oggi pomeriggio, i tecnici hanno presentato il progetto di riqualificazione
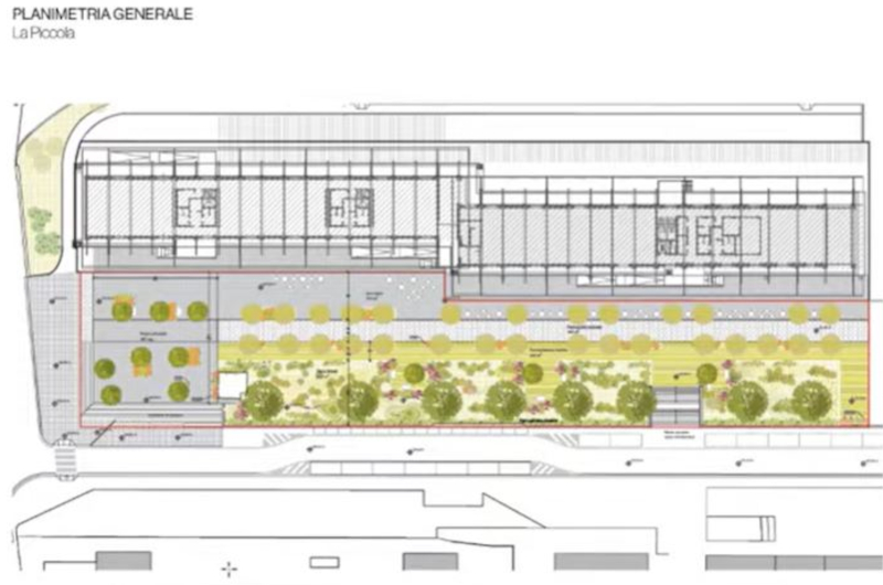
LECCO – Una commissione lampo, quella che si è svolta mercoledì pomeriggio, per presentare il progetto di riqualificazione dell’area esterna della Piccola che, a un primo sguardo, ha ricevuto larghi consensi. L’area interessata dal progetto è quella che si sviluppa lungo le due stecche degli ex magazzini e che si affaccia su via Ghislanzoni.
Gli architetti Bucciarelli e Chiodaroli sono entrati nel vivo di un progetto che ha l’obiettivo di creare un nuovo spazio pubblico che possa soddisfare le esigenze di una città che sta crescendo. A tutto questo si sono associate tematiche di sostenibilità a partire dal verde e dalla gestione delle acque meteoriche che, con i fenomeni estremi degli ultimi anni, meritano la giusta considerazione.

“Nell’elaborazione del progetto siamo partiti dall’analisi flussi veicolari che interessano l’area e abbiamo pensato a una modifica per fare in modo che quella parte diventi pedonale – hanno spiegato i due architetti -. Stiamo parlando di un’area stretta e lunga, un corridoio a cui vogliamo dare, oltre al carattere pedonale, anche un carattere di servizio a ciò che andrà ad occupare le stecche antistanti”.

All’inizio dell’area verrà creato il punto di contatto con il resto della città: “Ci sarà una prima area a carattere di piazza che fungerà da snodo per i vari utilizzi dell’area a partire da quello di dehors che avrà un andamento lineare lungo tutta la lunghezza. Ci saranno punti in cui ci si può sedere, punti a servizio degli spazi interni alle stecche e una passeggiata. Altro punto lineare sarà la passeggiata verde che farà da filtro tra la passeggiata pedonale e l’area verde posta verso il limite del area che si affaccia su via Ghislanzoni. Un filtro che sfuma diventando sempre più verde verso il parco vero e proprio”.

Una spazio di qualità nel quale verrà inserito anche un nuovo passaggio pedonale per l’accesso diretto con il campus universitario del Politecnico: “Sarà uno spazio di richiamo che avrà qualità estetica e ambientale, racchiudendo più funzioni: connessione, luogo dello stare e luogo di servizio per gli spazi creati nelle stecche. Altro tema è l’accessibilità: l’obiettivo è quello di creare una accessibilità universale”.

Il progetto, infine, prevede arredi urbani molto freschi, giovani, già utilizzati per altri progetti a Lecco. Alcuni elementi specifici come le fontane sono pensate anche per l’utilizzo da parte dei cani. Anche l’illuminazione è stata studiata nei minimi particolari con peculiarità a seconda del lungo in cui è posizionata.
Un particolare che farà felici molti lecchesi, soprattutto quelli che hanno qualche anno in più, il riutilizzo nel progetto delle lastre in pietra che, fino a una decina d’anni fa, costituivano la pavimentazione di corso Matteotti. Idea che ha trovato l’approvazione anche del consigliere di minoranza Corrado Valsecchi.

L’importo previsto per i lavori di riqualificazione è di 520.000 euro e il cronoprogramma prevede, al momento, la presentazione del progetto entro la fine di giugno, l’inizio dei lavori tra settembre e ottobre, con la presumibile conclusione per l’estate 2026.
“La Piccola da luogo chiuso diventa aperto – ha sottolineato l’assessore ai Lavori Pubblici Maria Sacchi -. Un grazie alla precedente amministrazione che ha consentito al Comune di entrare in proprietà di questo spazio che noi abbiamo avuto la possibilità di riqualificare. Vicino a questo spazio ci sono la scuola De Amicis e il Politecnico, ma questa zona, fino ad oggi chiusa e degradata, deve diventare un luogo per tutti. E’ un intervento che va a dare risposte variegate per una Piccola che diventa grande“.

RADIO LECCOCITTÁ CONTINENTAL




































